Proyectos
Publicaciones
Estudio
Contacto
ES
/
EN
Proyectos
Publicaciones
Estudio
Contacto
ES
/
EN
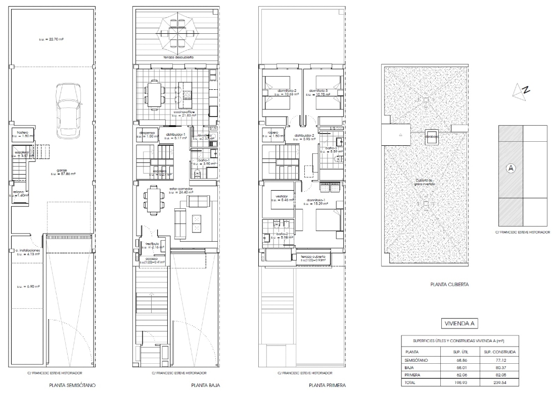
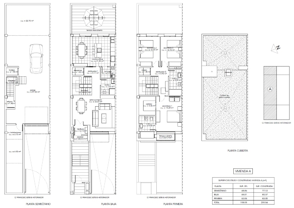
Dos viviendas adosadas
Almassora (Castellón)