Proyectos
Publicaciones
Estudio
Contacto
ES
/
EN
Proyectos
Publicaciones
Estudio
Contacto
ES
/
EN
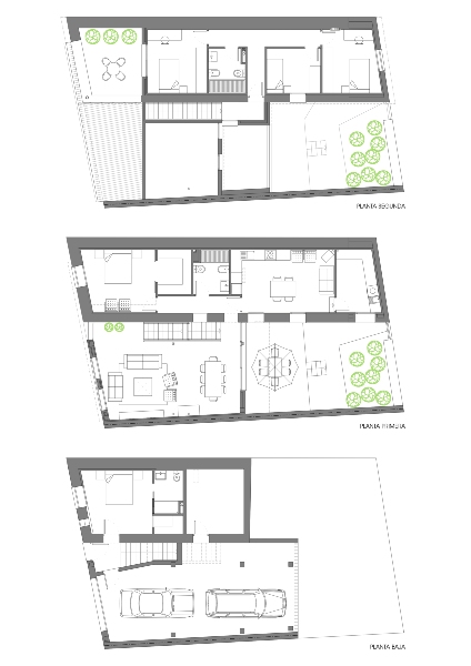
Rehabilitación de vivienda
Vilafamés (Castellón)