Proyectos
Publicaciones
Estudio
Contacto
ES
/
EN
Proyectos
Publicaciones
Estudio
Contacto
ES
/
EN
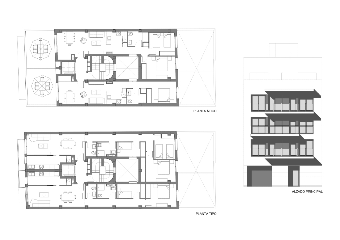
Edificio de ocho viviendas
Almassora (Castellón)